Programa de ejecución, con Plan Especial de Reforma Interior, y Proyecto de urbanización de “Las Monjas”

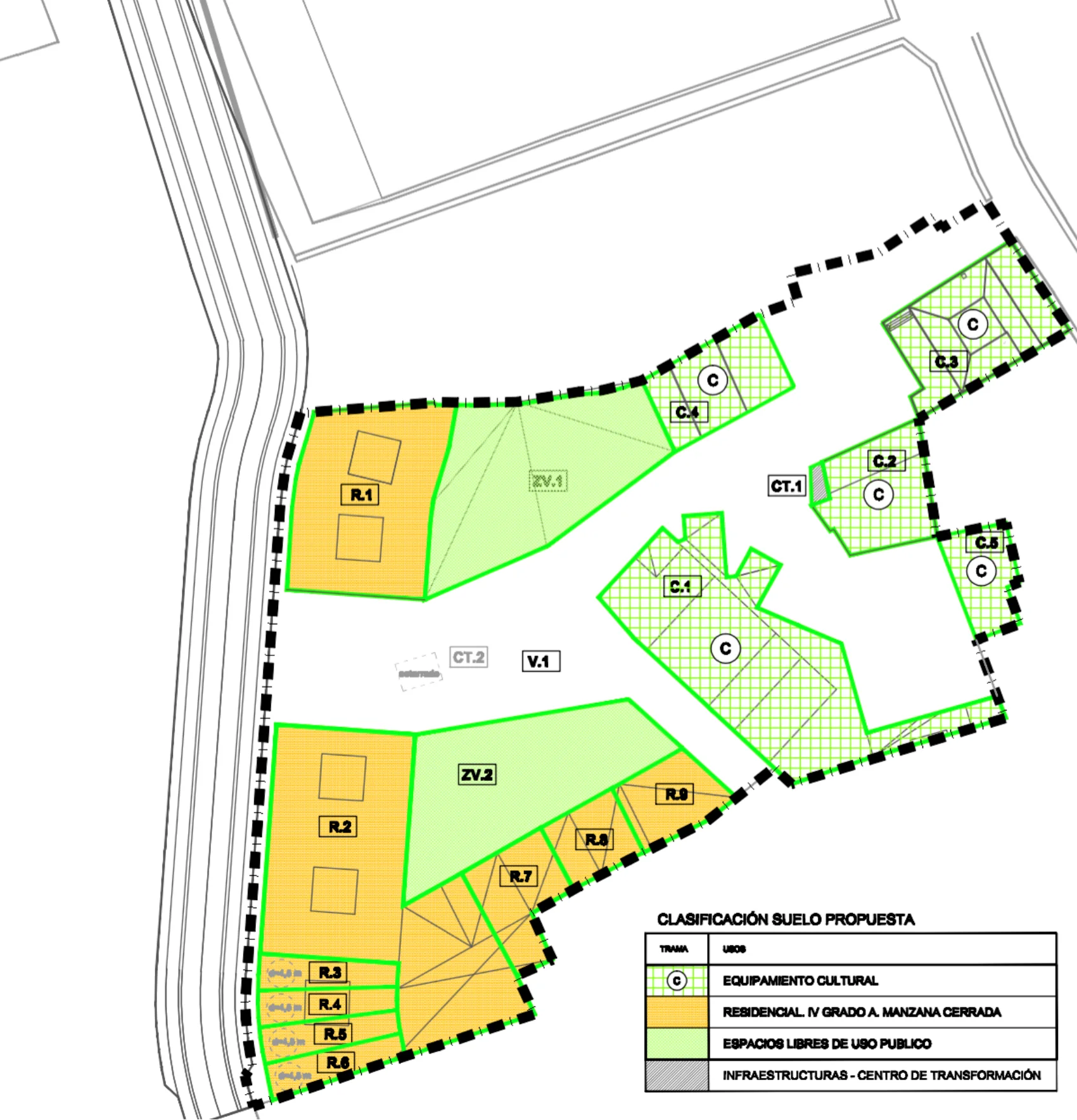
Programa de ejecución, con Plan Especial de Reforma Interior, y Proyecto de urbanización de “Las Monjas”El desarrollo de este ámbito colmata un vacío urbano definido por el desnivel en la Huerta de las Monjas.Además, la  propuesta permite la creación de un espacio urbano derivado de la creación de la nueva Vía Mirador y posibilita la integración de los equipamientos previstos, como el Teatro.Otros de los objetivos de la propuesta son resolver los problemas de acceso viario y establecer las parcelas para una futura edificación.Localización: Zafra, BadajozCliente: Agrupación de interés urbanísticoFecha: 2008-2010Tipo: Programa de ejecución, Plan Especial de Reforma Interior, Proyecto de UrbanizaciónPrograma: Desarrollo y urbanización de ámbito en zona de transición entre el casco urbano y el ensancheSuperficie: 10.074 m2Equipo: Alexandra Delgado Jiménez, Enrique KraheFase: Finalizado The development of this area fills an urban gap defined by the unevenness in the Huerta de las Monjas. In addition, the proposal allows the creation of an urban space derived from the creation of the new Via Mirador and enables the integration of the planned equipment, such as the Theater. Other objectives of the proposal are to solve problems of road access and establish the plots for future building.Location: Zafra, BadajozClient: Association of urban interestDate: 2008-201Type: Program for development of a Special Plan and Urbanization ProjectProgram: Development and urbanization of area in zone of transition between the urban helmet and the extensionSurface: 10.074 m2Team: Alexandra Delgado Jiménez, Enrique Krahe MarinaPhase: Finished